Green Pond
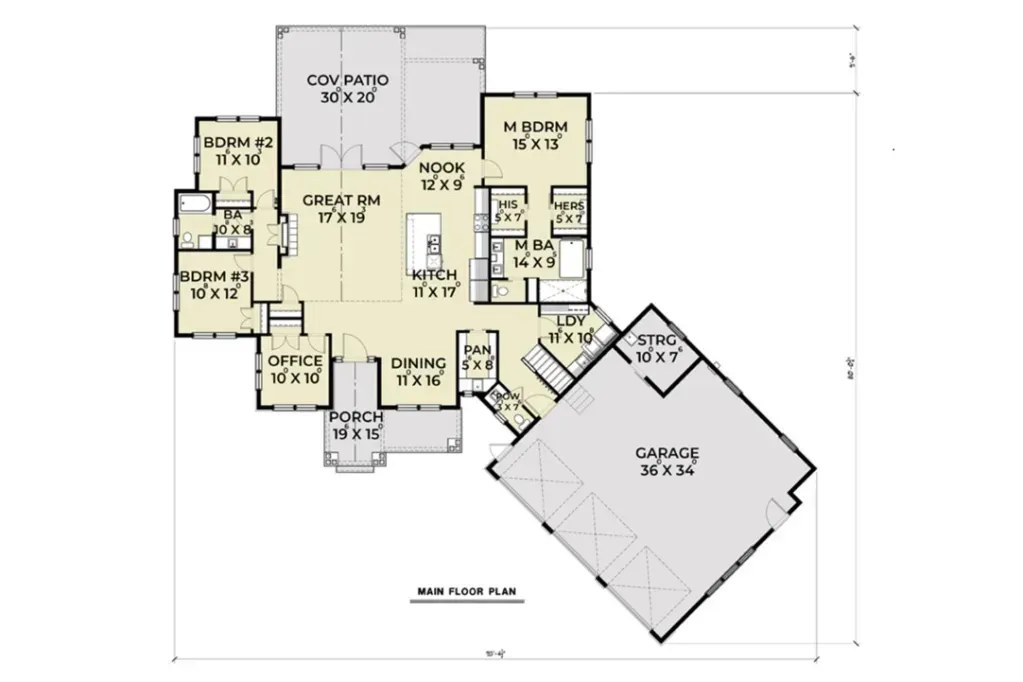
This 3-bedroom, 2.5-bathroom home offers 2,800 sq ft of thoughtfully designed living space. The home features an expansive 3-car garage, offering not only room for your vehicles but also additional space for a shop. There is also space above that could easily be converted into an office or bonus room now or in the future. The grand front entrance sets the tone for the rest of the house, providing a warm and inviting welcome.
The back porch is a standout feature, with ample space for outdoor living. It includes a cozy fireplace, a fully equipped outdoor kitchen, and a dining area, perfect for entertaining or enjoying quiet evenings. The tongue-and-groove ceilings, complemented by ceiling fans and built-in heaters, provide both comfort and charm to this outdoor oasis.
Inside, the open floor plan creates a seamless flow between the large living room and kitchen, making the home feel even more spacious. The master retreat is a true highlight, offering plenty of room to relax and unwind, with a particularly generous shower that adds to its luxury feel. This home blends functional spaces with thoughtful design, making it a perfect place for comfortable living.









